1.概述
1.1技术参数
型号:SC型砂在线质量控制仪 V2.0
尺寸:
主题外形尺寸:长×宽×高 = 930mm×312mm×800mm,120Kg (100+695+135=930)
加水装置: 长×宽×高 = 2000mm×220mm×480mm,25Kg
配电箱: 宽×高×厚 = 400mm×600mm×250mm,35Kg
取样装置: 宽×高×厚 = 435mm×500mm×460mm,15Kg
电气参数:
电源: 三相四线电源,380VAC+PE,50HZ
电力消耗: 380V,2A
PLC电源:24VDC
直流电源消耗: 约2A
松砂电机: 380V/50HZ,0.18KW,0.77A,910r/min
气动系统: 最小0.45Mpa,1NM3/h(90S每批计算)
1.2 应用
型砂在线质量控制仪可以自动检测型砂性能—紧实率,强度。为了使检测参数用于控制混砂机控制,每批次检测两次。第一次检测后计算得出加水量,然后控制加水。
1.3 工作步骤
A Starting position B Sand filling,striking

C Testing the D Testing the compression
compactability strength,pushing out

图1-1
A 工作零位 1 混砂机
B 取砂 2 取样装置
C 测试紧实率 3 压实气缸
D 测试强度并排去试样 4 排料气缸
5 装料气缸
6 定位气缸
7 试样筒
8 压实底板
9 滑座
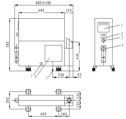
1.4 总体尺寸

1 触摸屏
2 控制开关
3 压力表
4 气动过滤器
5 试样孔
6 检查门
7 门锁
1.5 元件布置

联系我们